PARTS OF BASIC KIT | FULL PACK FOR ALL-SEASON
-
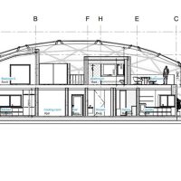
Architekture & Engineering technical drawings
- Elevation Dome & indoor home, floor plans, room plan, areas calculation full pack.
- Glass Dome loads calculation for EUROPE (Wind, Snow, Seismic calculations)
- Wall concerte construction, all wall layers constructions.
- Concrete Construction, foundation Analysis, heating system Concrete Floors.
- Interior & Exterior wall + decoration, wall, floor, plates for all rooms.
- Full electrical installations, all rooms, engineering system. Indoor systems
- Interior & exterior lighting concept (3D model)
- Plumbing and sewage disposal. Indoor instaliation
- Heating, ventilation and air conditioning, load calculations
-
FRAME SYSTEM | STRUCTURAL FAÇADE |
- Aluminum structural frame & Coated steel dome connectors. Installation Kit: Intermediates, Bolts, fixation elements, all elements marking and packaging.
The construction carcass is produced from aluminum structural profile parts for structural facades, the parts include a sealing rubber, fixing kit. Steel connection hubs: STAR type – 4-5-6 directions, powder painted. A set of stainless steel rivets 6.4 mm for carcass construction.
Each geodesic dome structure is designed according to load calculations. This in turn ensures safety and durability. Our structural engineers can calculate the maximum loads of the equipment suspended by the geodesic dome of regional norms
ADDITIONAL POSSIBLE DECORATIVE AND FIRE PROTECTION
-
Basic Kit | DOUBLE GLASS PANELS | 6mm Glass – 18mm ARGON90% – 44,1 EN2PLUS laminated
Triangular windows glass laminated packet parts for corner roofs glass facades. The exterior glass is tempered, the thermo-frame has high moisture resistance, the internal 2 glass layers are laminated, safe glass. SOLAR CONTROL Glass packet with thermo coating for better heat insulation of the packet.
- Packet thickness: 6mm/16mm/4+4mm (30mm).
- Thermal conductivity UG: 1,12 W/m2.
- A set of bands for seal insulation. Installation glue set for seal treatment.
- A set of tin finishing parts with seal waterproofing.
- Seam insulation materials.
- A full installation set, and documentation for facade assembly.
- All elements marking and special glass packaging.
TRIPLEX GLASS PANELS | 6mm Glass – 16mm ARGON90% – 6mm Glass – 16mm ARGON90% – 44,1 EN2PLUS laminated
Triangular windows glass laminated packet parts for corner roofs glass facades. The exterior glass is tempered, the thermo-frame has high moisture resistance, the internal 2 glass layers are laminated, safe glass. Glass packet with thermo coating for better heat insulation of the packet. Thermal conductivity UG: 0,5-0,8 W/m2.
- Packet thickness: 6mm/16mm/6mm/16mm/4+4mm (50mm).
- Thermal conductivity UG: 0,7 W/m2.
- A set of bands for seal insulation. Installation glue set for seal treatment.
- A set of tin finishing parts with seal waterproofing.
- Seam insulation materials.
- A full installation set, and documentation for facade assembly.
- All elements marking and special glass packaging.
ABOUT GLAZED WINDOWS :
-
LUX CLASS DOUBLE-OPENED ALUMINIUM DOOR SYSTEM 2100x1800mm.
Entrance to the house with a visor and vestibule. LUX CLASS ALU double doors. The main advantage of 85mm ALU profile doors is their excellent insulation. They are resistant to damages and protect the house from burglars.
- Aluminium doors have a multi-point security lock.
- They are strong and secure.
- Aluminium doors come with a glazing packet
- It has a very simple maintenance.
-
Polyester Wooden Texture
- Excellent weatherability which warranty for 15 years for outdoor, 10years for indoor
- Super peeling strength
- Good cold resistance performance
- Excellent surface flatness and smoothness
- Super weather, corrosion, pollutant resistance
- Even coating, various colors
- Perfect impact resistance
- Light weight(60% of aluminum panel and 30% of that of steel panel) and easy to process
- Easy to maintain


































